Ricerca rapida
Codice
Tipologia
Categoria
Città
Zona
Descrizione
Prezzo (da - a)
-
Mq (da - a)
-
Ordine
Cerca
Scheda Immobile

Arcene - Villetta schiera, Villa

Codice V001311
VILLA DI TESTA CON OTTIMO RAPPORTO QUALITA'/PREZZO!!

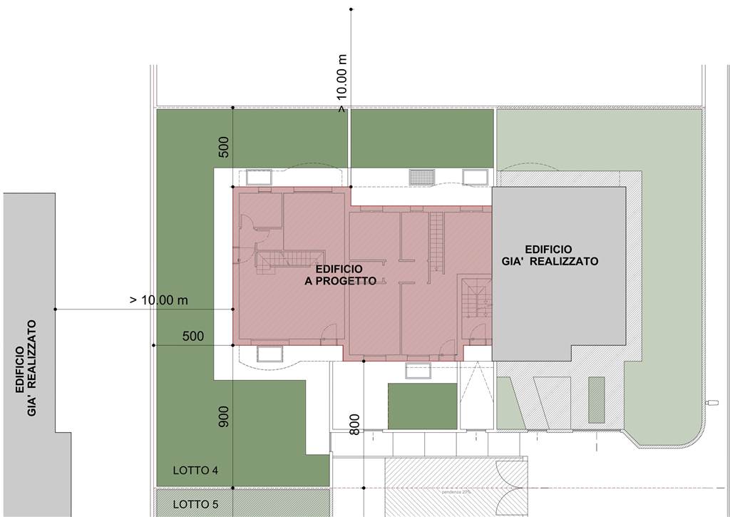
In nuovo riservato contesto residenziale di sole 3 unità immobiliari (2 appartamenti + 1 villa di testa), si propone villa libera sui 3 lati sud/ovest/est da circa 142mq (71mq per piano) su 2 livelli + interrato.

Ingresso pedonale indipendente con accesso da giardino perimetrale da circa 170mq.

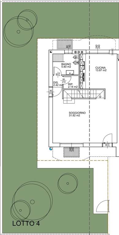
Piano terra: soggiorno con cucina separata per un totale di ben 46mq calpestabili, disimpegno bagno e ripostiglio.
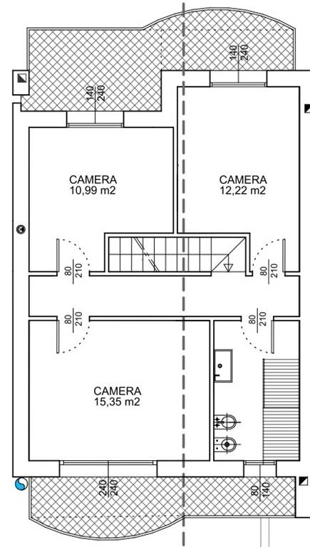
Piano primo: 3 ampie camere da letto, disimpegno e bagno.
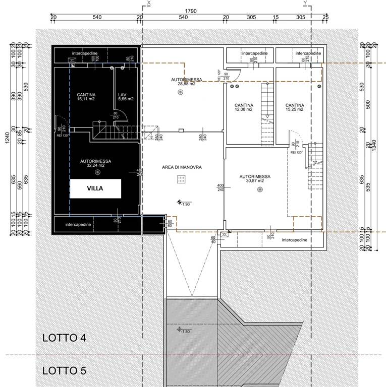
Piano interrato: cantina da 23mq, box da 35mq, intercapedini da 17mq.

La villa sarà edificata con elevati parametri costruttivi per raggiungere la certificazione A3 o superiore (valore di progetto) prevedendo innovativa costruzione con il sistema ECOSISM che prevede struttura in acciaio zincato a formare i casseri al cui interno vengono inseriti pannelli isolanti (come EPS, lana di roccia, etc.) che garantiscono un doppio cappotto (interno ed esterno alla parete portante) e successivamente vengono riempiti con calcestruzzo per creare una parete portante monolitica che garantisce ottime prestazioni sismiche, termiche ed acustiche superiori ai sistemi di costruzione tradizionali. I tavolati interni saranno in cartongesso doppia lastra 1,2cm+1,2cm con interposta lana di roccia per isolamento termoacustico. Serramenti basso emissivo in PVC con tapparelle in alluminio motorizzate, impianto di riscaldamento a pavimento con pompa di calore e predisposizione split idronici per il raffrescamento funzionante sempre con la medesima pompa di calore così anche da ridurre i costi di manutenzione, impianto di VMC (ventilazione meccanica controllata), impianto fotovoltaico minimo 3,5kw, predisposizione antifurto perimetrale sui serramenti e volumetrico interno, portone sezionale box coibentato e motorizzato, etc.

Prezzo 398.000€ (circa 200mq commerciali parzializzati). Allacciamenti ed accatastamenti compresi nel prezzo!
Prezzo
398.000,00 EUR
Spese condominiali
80,00 EUR
Mq
200
Classe
A3
Locali
4
Camere
2
Bagni
2
Box
2
Mq Box
35
Mq Giardino
162
Mq Balcone
15
Stato Immobile
In Costruzione
Grado
Signorile
Orientamento
Ovest Est
Totale Piani
Due
Lati Liberi
2
Giardino
Privato
Tipo Cucina
Abitabile
Riscaldamento
Autonomo
Tipo Riscaldam.
Pompa di Calore
Tipo Impianto
Pavimento
Fonte Energetica
Fotovoltaico
Acqua Calda
Autonoma
Raffrescamento
Split
Infissi
PVC Doppio Vetro
Persiana
Tapparella Metallo
Pavim. Giorno
Gres Porcellanato
Pavim. Notte
Gres Porcellanato
Pavim. Cucina
Gres Porcellanato
Pavim. Bagno
Gres Porcellanato
Cantina - Solaio
Cantina
Isolamento
Presente
Isolamento termico
Cappotto esterno
Isolamento acustico
Isolamento completo
VMC
Si
Accessori
Antifurto, Aria Condizionata, Cancello Elettrico, Doppi Vetri, Porta Blindata, Ripostiglio, Video Citofono
Richiedi informazioni
Compila questo modulo per inviarci una mail
di richiesta informazioni per questo immobile
Riferimento Immobile
Nominativo
Telefono
Email
Testo richiesta
Autorizzo contattarmi/inviarmi materiale pubblicitario/informativo inerente l’ambito commerciale per finalità promozionali oltre al trattamento dei miei dati personali in base al D.Lgs. n.196 del 30 giugno 2003 e Regolamento UE n. 679/2016 (Regolamento Generale sulla Protezione dei Dati) - Privacy Policy
Tutti i campi sono obbligatori
Invia
Cookie preference