Ricerca rapida
Codice
Tipologia
Categoria
Città
Zona
Descrizione
Prezzo (da - a)
-
Mq (da - a)
-
Ordine
Cerca
Scheda Immobile

Cologno al Serio - 4 o più locali, Appartamento

Codice V001330
In nuova zona residenziale, ariosa e riservata, in piccola palazzina di sole 4 unità abitative, si propongono 2 nuovi appartamenti quadrilocali posti al piano terra con grandi giardini di proprietà esclusiva.

Finiture di pregio e criteri costruttivi per arrivare alla certificazione energetica in classe A grazie anche alle coibentazioni previste con cappotto 14cm, serramenti in massa bianca PVC a basso emissivo TRIPLO vetro con gas argon, impianto di riscaldamento a pavimento con pompa di calore per gestire anche il raffrescamento utilizzando lo stesso motore collegato a split idronici (predisposizione), impianto fotovoltaico con ben 6kw installati (no metano).

Inoltre, tapparelle in alluminio coibentate e motorizzate, sezionale box motorizzata. predisposizione per impianto antiintrusione, sanitari sospesi, etc.

Inizio lavori dicembre 2025 e consegna prevista per fine ottobre/novembre 2026.

Possibilità di personalizzazione delle finiture interne.

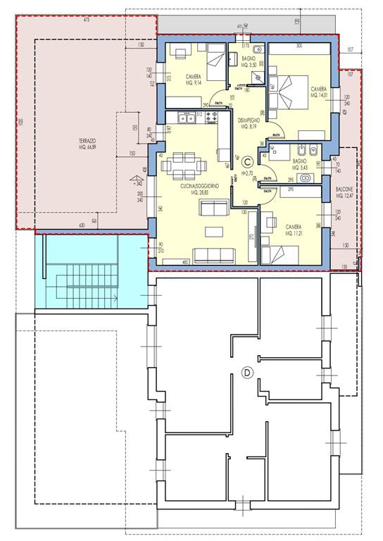
Appartamento C: circa 100mq abitativi oltre box doppio da 30mq e grande terrazzo vivibile da ben 67mq + balcone da 12mq, tipologia quadrilocale con 3 camera da letto, ampio soggiorno con cucina a vista, 2 bagni, prezzo 330.000€ (148mq comm. tot. parz.).
Prezzo
330.000,00 EUR
Mq
99
Classe
A4
Locali
4
Camere
3
Bagni
2
Box
2
Mq Box
29
Mq Balcone
12
Stato Immobile
In Costruzione
Grado
Signorile
Piano
Primo
Totale Piani
Due
Lati Liberi
3
Giardino
Privato
Tipo Cucina
A Vista
Riscaldamento
Autonomo
Tipo Riscaldam.
Pompa di Calore
Tipo Impianto
Pavimento
Fonte Energetica
Fotovoltaico
Acqua Calda
Autonoma
Raffrescamento
Predisposizione
Infissi
PVC Triplo Vetro
Persiana
Tapparella Metallo
Pavim. Giorno
Gres Porcellanato
Pavim. Notte
Gres Porcellanato
Pavim. Cucina
Gres Porcellanato
Pavim. Bagno
Gres Porcellanato
Isolamento
Presente
Isolamento termico
Cappotto esterno
Isolamento acustico
Isolamento completo
Spessore cappotto (cm)
14
Accessori
Antifurto, Aria Condizionata, Cancello Elettrico, Doppi Vetri, Impianto Fotovoltaico, Porta Blindata, Tapparelle Elettriche, Tripli Vetri, Video Citofono
Richiedi informazioni
Compila questo modulo per inviarci una mail
di richiesta informazioni per questo immobile
Riferimento Immobile
Nominativo
Telefono
Email
Testo richiesta
Autorizzo contattarmi/inviarmi materiale pubblicitario/informativo inerente l’ambito commerciale per finalità promozionali oltre al trattamento dei miei dati personali in base al D.Lgs. n.196 del 30 giugno 2003 e Regolamento UE n. 679/2016 (Regolamento Generale sulla Protezione dei Dati) - Privacy Policy
Tutti i campi sono obbligatori
Invia
Cookie preference