Ricerca rapida
Codice
Tipologia
Categoria
Città
Zona
Descrizione
Prezzo (da - a)
-
Mq (da - a)
-
Ordine
Cerca
Scheda Immobile

Cologno al Serio - Villa Bifamiliare, Villa

Codice V001333
VILLA DI TESTA DI GRANDI DIMENSIONI, INEGUAGLIABILE RAPPORTO/QUALITA' PREZZO, ASSOLUTAMENTE DA VEDERE!!!!!

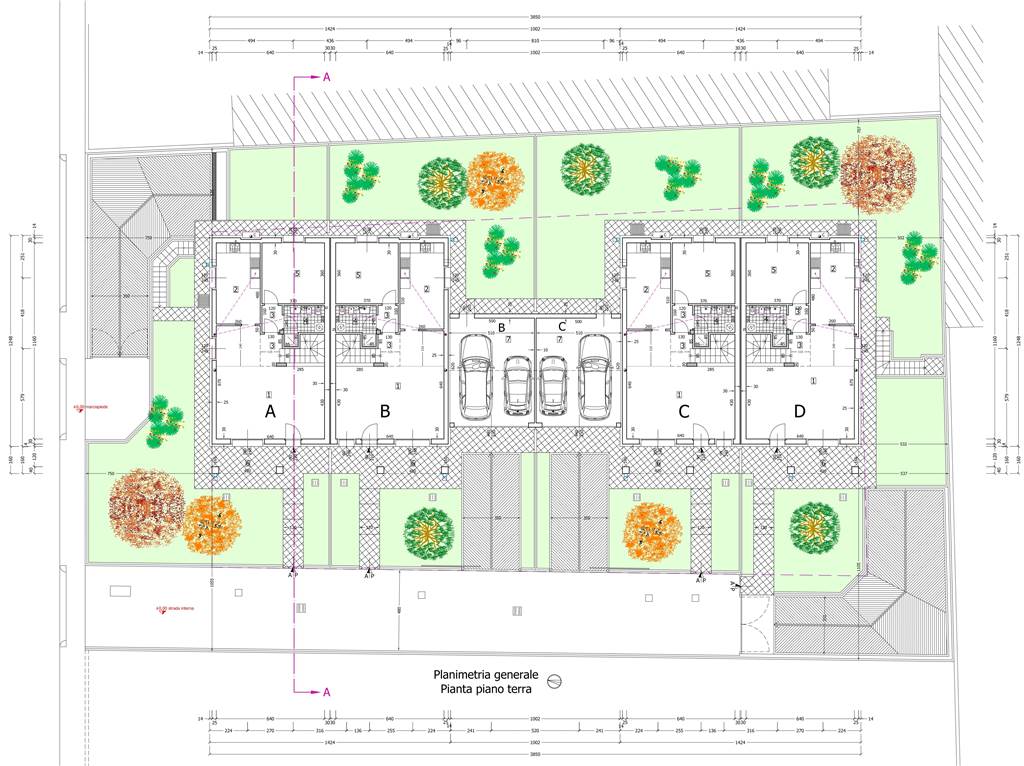
In nuovo quartiere residenziale ultima villa bifamiliare di testa in realizzazione quadrifamiliare con unità immobiliari completamente autonome fra loro, senza spese condominiali e con ingressi pedonali e carrabili indipendenti.
Consegna prevista agosto/settembre 2026.

Si caratterizza per le grandi dimensioni non usuali (143mq commerciali sui 2 piani) e per le distanze dai confini fino a 8mt.

Ottime le finiture con riscaldamento a pavimento con sistema ibrido caldaia condensazione+pompa di calore alimentata da impianto fotovoltaico 2kw, serramenti PVC basso emissivo, isolamento cappotto 14cm, VMC (ventilazione meccanica controllata) con deumidificazione, tetto travi a vista lamellare coibentato e ventilato con altezze fino a 360cm e tegole garantite 20 anni, predisposizione clima ed antifurto, portone sezionale box (coibentato) e cancello motorizzati, pavimenti e rivestimenti 40€ costo solo materiale, etc.

LE VILLE BIFAMILIARI SONO EDIFICATE CON STRUTTURE PORTANTI COMPLETAMENTE INDIPENDENTI E NON SONO PRESENTI PARETI CONDIVISE.
A SEPARAZIONE FRA LE VILLE CI SONO 2 MURI PORTANTI INDIPENDENTI ED INTERCAPEDINE AL CENTRO. Le 4 ville sono state edificate con inizio lavori fine 2017 ma, quella in vendita, è in finitura da febbraio 2026.

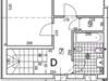
P.t. (88mq): Ingresso in grande e luminoso soggiorno da ben 37mq calpestabili esposto a sud/ovest, cucina abitabile separata di ulteriori 13mq, disimpegno, prima camera, bagno. Area esterna di proprietà sui 3 lati della casa con distanze dai confini dai 5 agli 8 mt per una superficie complessiva pari a 300mq (per la maggior parte terrapieno) di cui 75mq per il corsello carrale.

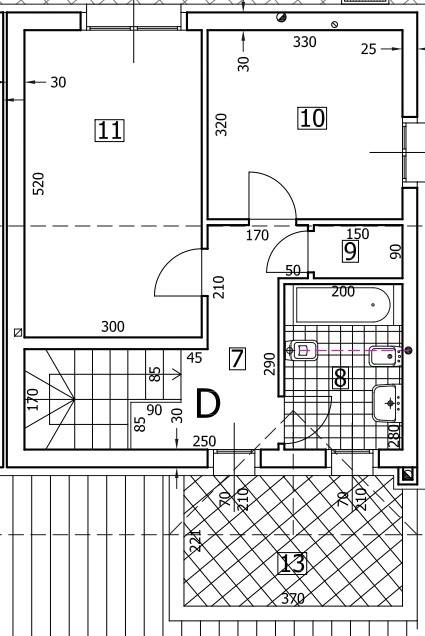
P.1° (55mq completamente abitabili): seconda e terza camera, ripostiglio, secondo bagno, terrazzo 10mq.

Nell'interrato grande box doppio in larghezza da circa 32mq ed intercapedine accessibile sotto tutta l'abitazione per l'isolamento termico del piano terra (tipo grande vespaio areato ma con possibile funzione di enorme ripostiglio).

Prezzo 378.000€ (circa 200mq totali commerciali parzializzati, prezzo al mq pari a soli 1.890€!!).

Certificazione energetica valore di progetto classe A4.
Prezzo
378.000,00 EUR
Mq
143
Classe
A4
Locali
6
Camere
3
Bagni
2
Box
2
Mq Box
32
Mq Giardino
300
Stato Immobile
In Costruzione
Grado
Signorile
Orientamento
Est Sud Ovest
Totale Piani
Due
Lati Liberi
3
Giardino
Privato
Tipo Soggiorno
Doppio
Tipo Cucina
Abitabile
Riscaldamento
Autonomo
Tipo Riscaldam.
Pompa di Calore
Tipo Impianto
Pavimento
Acqua Calda
Autonoma a Pannelli
Infissi
PVC Doppio Vetro
Persiana
Tapparella Metallo
Pavim. Giorno
Gres Porcellanato
Pavim. Notte
Parquet
Pavim. Cucina
Gres Porcellanato
Pavim. Bagno
Gres Porcellanato
Accessori
Antifurto, Aria Condizionata, Cancello Elettrico, Doppi Vetri, Impianto Fotovoltaico, Impianto Satellitare, Lavanderia, Porta Blindata, Ripostiglio, Video Citofono
Richiedi informazioni
Compila questo modulo per inviarci una mail
di richiesta informazioni per questo immobile
Riferimento Immobile
Nominativo
Telefono
Email
Testo richiesta
Autorizzo contattarmi/inviarmi materiale pubblicitario/informativo inerente l’ambito commerciale per finalità promozionali oltre al trattamento dei miei dati personali in base al D.Lgs. n.196 del 30 giugno 2003 e Regolamento UE n. 679/2016 (Regolamento Generale sulla Protezione dei Dati) - Privacy Policy
Tutti i campi sono obbligatori
Invia
Cookie preference