Ricerca rapida
Codice
Tipologia
Categoria
Città
Zona
Descrizione
Prezzo (da - a)
-
Mq (da - a)
-
Ordine
Cerca
Scheda Immobile

Urgnano - Villa Bifamiliare, Villa

Codice V001298
IMPERDIBILE OCCASIONE A COLOGNO AL SERIO (a 5 minuti di auto da Urgnano).

PER AMANTI INDIPENDENZA, VILLA COMPLETAMENTE RISTRUTTURATA A NUOVO.
SI VENDE A MENO DEL PREZZO DI UN TRILOCALE DI NUOVA COSTRUZIONE, VERO AFFARE, DA VEDERE!!!

In tranquilla zona residenziale, prossima a tutti i servizi del paese, fermata autobus, supermercato, e a 5 minuti a piedi dal centro, si propone villa bifamiliare edificata nel 1984 e completamente ristrutturata a nuovo nel 2022/2023. Sono stati eseguiti importanti lavori (circa 90.000€):
rifacimento degli impianti, installazione di 6kw per il fotovoltaico PANNELLI + BATTERIE DI ACCUMULO, nuovi pavimenti nella zona giorno, nuovi serramenti PVC a basso emissivo con gas argon, zanzariere a carroarmato, climatizzatori a pompa di calore DAIKIN, ampliamento terrazzo zona notte, installazione COLONNINA PER RICARICA AUTO ELETTRICA, bagni completamente rifatti, etc. Tetto rifatto nel 2015 e poi rivisto in sede di installazione pannelli fotovoltaici.

La casa si presenta praticamente nuova e abitabile da subito, senza lavori da farsi, venduta con possibilità anche di arredo completo (con valore a nuovo pari a circa 25.000€ comprensivo di elettrodomestici, lampadari, tende, arredo bagno. Casa pronta da abitare!!!. Telefonare in studio per avere maggiori informazioni)

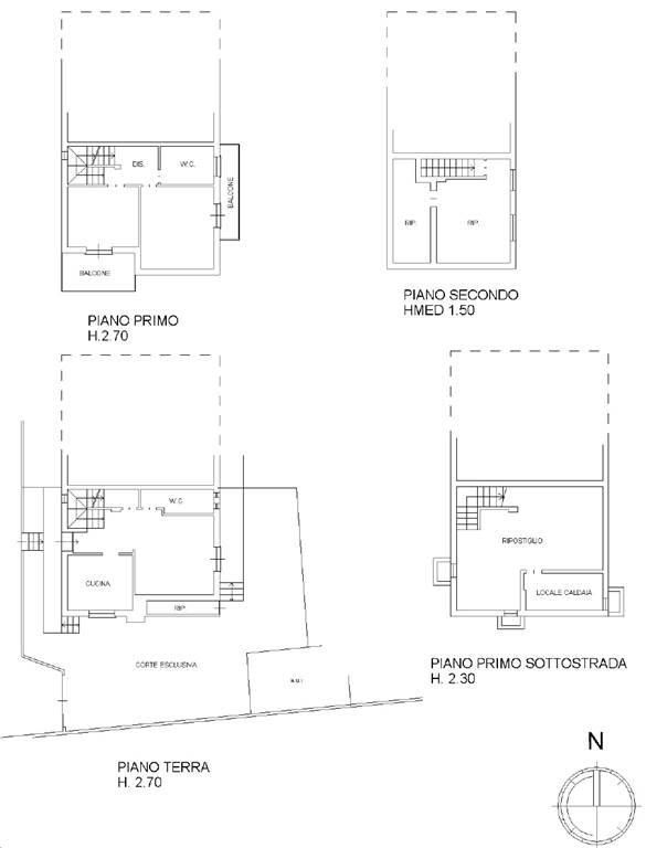
Ingresso indipendente sia pedonale che carrabile, nessuna spesa condominiale. Si dispone su 3 livelli fuori terra oltre piano seminterrato:

Piano terra/rialzato (circa 50mq): ingresso, soggiorno, cucina abitabile separata, disimpegno, bagno. Area esterna terrapieno piastrellata (circa 100mq) di cui 30mq circa di patio perfetto per le grigliate estive, box singolo a livello strada di circa 16mq. NON ADATTA A CHI CERCA GRANDE GIARDINO MA PERFETTA PER CHI VUOLE AREA ESTERNA PER PRANZARE ALL'APERTO.

Piano 1° (circa 50mq): disimpegno, 2 grandi camere da letto, bagno con grande piatto doccia, 2 balconi a servizio delle camere di cui uno è piccolo terrazzo vivibile di quasi 6mq.

Piano seminterrato (circa 53mq): grande locale taverna/ripostiglio oltre locale tecnico per impiantistica oltre che ad uso lavanderia.
Al secondo piano presenza di vano sottotetto parzialmente sfruttabile con metratura di circa 23mq + altri 12mq uso solaio.

C.E. C, Ep Gl Nren 101,99 kw/h mq/a.

Prezzo 275.000€
Si precisa che, la compravendita, resterà subordinata all'esito positivo di ricerca di nuova abitazione a cura di parte venditrice con tempistica minimo di 3 mesi dalla sottoscrizione della proposta di acquisto.
Casa quindi libera dopo circa 6 mesi dalla sottoscrizione del contratto preliminare di compravendita. Per maggiori informazioni chiamare in agenzia.
Prezzo
275.000,00 EUR
Mq
145
Classe
C (101,99 [kWh/m²a])
Locali
5
Camere
2
Bagni
2
Box
1
Mq Box
16
Posti auto
2
Mq Giardino
98
Mq Balcone
5
Stato Immobile
Ristrutturato
Grado
Medio
Lati Liberi
3
Giardino
Privato
Arredi
Arredato a Nuovo
Tipo Cucina
Abitabile
Riscaldamento
Autonomo
Tipo Riscaldam.
Pompa di Calore
Tipo Impianto
Radiatori
Fonte Energetica
Fotovoltaico
Acqua Calda
Autonoma
Raffrescamento
Split
Infissi
PVC Doppio Vetro
Serramenti
Nuovo
Persiana
Oscurante Legno
Pavim. Giorno
Gres Porcellanato
Pavim. Notte
Parquet
Pavim. Cucina
Gres Porcellanato
Pavim. Bagno
Gres Porcellanato
Cantina - Solaio
Solaio
Accessori
Antifurto, Aria Condizionata, Camino, Cancello Elettrico, Doppi Vetri, Impianto Fotovoltaico, Lavanderia, Zanzariere
Richiedi informazioni
Compila questo modulo per inviarci una mail
di richiesta informazioni per questo immobile
Riferimento Immobile
Nominativo
Telefono
Email
Testo richiesta
Autorizzo contattarmi/inviarmi materiale pubblicitario/informativo inerente l’ambito commerciale per finalità promozionali oltre al trattamento dei miei dati personali in base al D.Lgs. n.196 del 30 giugno 2003 e Regolamento UE n. 679/2016 (Regolamento Generale sulla Protezione dei Dati) - Privacy Policy
Tutti i campi sono obbligatori
Invia
Cookie preference