Ricerca rapida
Codice
Tipologia
Categoria
Città
Zona
Descrizione
Prezzo (da - a)
-
Mq (da - a)
-
Ordine
Cerca
Scheda Immobile

Urgnano - Villa, Villa Bifamiliare

Codice V001315
VILLE BIFAMILIARI COMPLETAMENTE INDIPENDENTI DISPOSTE SU 2 PIANI FUORI TERRA DA 70MQ CIASCUNO + BOX DOPPIO IN LARGHEZZA DA 37MQ a livello strada (no interrato).

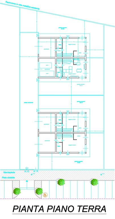
URGNANO, nuove ville di prossima edificazione, trattasi di bifamiliare con le 2 unità abitative che si sviluppano ciascuna con superficie abitativa di 140mqsu 2 livelli con tipologia quadrilocale (3 camere, 2 bagni al piano, ripostiglio, soggiorno e cucina).

Risultano ovviamente libere sui 3 lati e con giardini di proprietà da 162mq (villa 2 ovest) a 232mq (villa 1 est).

Ottimo il capitolato delle opere e delle finiture interne che rispecchia la pluriennale esperienza dell'impresa costruttrice che si è sempre distinta per offrire alla sua clientela un prodotto di grande qualità in grado di mantenere prestazioni e valore nel tempo.

Particolare attenzione sarà posta alla coibentazione per evitare anche i ponti termici, ma anche all'isolamento acustico per evitare la diffusione di rumori fra le unità abitative grazie all'utilizzo di specifiche tecniche costruttive e materiali fonoassorbenti. Certificazione energetica valore di progetto previsto minimo in classe A2 (probabile A4 definitivo dopo il fine lavori).

Le ville sono pensate per offrire il massimo confort abitativo ai clienti con possibilità di personalizzazione per quanto riguarda la disposizione degli spazi interni e le finiture sempre partendo da un capitolato di ottimo livello.

Struttura portante in cemento armato, tavolati interni in muratura, isolamento a cappotto, serramenti in PVC con profili sottili a basso emissivo con gas Argon e zero manutenzione, avvolgibili in alluminio motorizzati con predisposizione per integrazione con impianto di domotica.
Pavimenti e rivestimenti 40€/mq posati, sanitari sospesi, videocitofono, impianto satellitare, riscaldamento a pavimento con impianto a pompa di calore (con possibilità gestire anche il raffrescamento con split idronici o, con sovrapprezzo, a pavimento), VMC (ventilazione meccanica controllata), impianto fotovoltaico 4,5kw/come previsto ex legge 10/91 (no metano), etc.

Villa n° 2 esposta sud/ovest/nord: prezzo 430.000€ con giardino da 162mq

Villa n° 1 esposta sud/est/nord: prezzo 440.000€. Questa villa ha anche area di proprietà di circa 40mq di fronte all'ingresso del suo box oltre a giardino da 232mq.

Possibilòità di massima personalizzazione oltre che potere optare per soluzioni da 151mq abitativi (75mq per piano) con prezzi pari a 460.000€ per la villa 1 e 470.000€ per la villa 2.

Rendering e progetti pubblicati sono da intendersi a titolo indicativo e non vincolanti contrattualmente.
Per maggiori informazioni 347 89 15 337
Prezzo
430.000,00 EUR
Spese condominiali
80,00 EUR
Mq
140
Classe
A4
Locali
6
Camere
3
Bagni
2
Box
2
Mq Box
37
Mq Giardino
170
Stato Immobile
Prossima Realizzazione
Grado
Signorile
Piano
Piano Terra
Orientamento
Sud
Totale Piani
Due
Lati Liberi
3
Giardino
Privato
Riscaldamento
Autonomo
Tipo Riscaldam.
Pompa di Calore
Tipo Impianto
Pavimento
Fonte Energetica
Fotovoltaico
Acqua Calda
Autonoma
Raffrescamento
Split
Infissi
PVC Doppio Vetro
Persiana
Tapparella Metallo
Pavim. Giorno
Gres Porcellanato
Pavim. Notte
Gres Porcellanato
Pavim. Cucina
Gres Porcellanato
Pavim. Bagno
Gres Porcellanato
Isolamento termico
Cappotto esterno
Isolamento acustico
Isolamento completo
VMC
Si
Accessori
Antifurto, Aria Condizionata, Cancello Elettrico, Doppi Vetri, Impianto Fotovoltaico, Impianto Satellitare, Lavanderia, Porta Blindata, Ripostiglio, Tapparelle Elettriche, Video Citofono
Richiedi informazioni
Compila questo modulo per inviarci una mail
di richiesta informazioni per questo immobile
Riferimento Immobile
Nominativo
Telefono
Email
Testo richiesta
Autorizzo contattarmi/inviarmi materiale pubblicitario/informativo inerente l’ambito commerciale per finalità promozionali oltre al trattamento dei miei dati personali in base al D.Lgs. n.196 del 30 giugno 2003 e Regolamento UE n. 679/2016 (Regolamento Generale sulla Protezione dei Dati) - Privacy Policy
Tutti i campi sono obbligatori
Invia
Cookie preference